Skip To Content

194 E Harris Rd

Imperial, CA 92251
  • $2,900,000
  • STATUS: Active
  • ON SITE: 147 Days
  • MLS #: 25618881IC
UPDATED: 26 min ago
$2,900,000
  • 0
    BEDS
  • 25
    ACRES
  • 0
    BATHS
  • 0
    1/2 BATHS
Neighborhood:
Type:
Vacant Land / Lots
County:
Area:

School Ratings & Info

Description

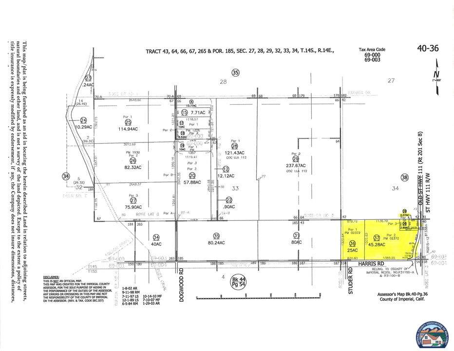
This 75.24 acre land listing is located in the Mesquite Lake Specific Plan Use area. There are four contiguous parcels that comprise this land offering. Parcel APN#040360036 consists of 25 gross acres, and is zoned Mesquite Lake Heavy Industrial (MLI3). The remaining three parcels, APN#040360037,038,039 consist of 50.24 gross acres, and are zoned Mesquite Lake Medium Industrial (MLI2). The land is strategically located next to major transportation arteries, those being Hwy 111, Hwy 86, Keystone Rd, Harris Rd. and Dogwood Rd. The Union Pacific Railroad has service approximately one mile to the west of the subject property. APN#040360036, has a CUP and a five year Sold Waste Permit, and facility renewal permit. There is a farming tenant with a four year lease on the subject property, but the owners have negotiated a buyout provision with the tenant in the event that a sale of the property can be negotiated.

Monthly Payment Calculator



© 2026 Imperial County Association of Realtors. All rights reserved. IDX information is provided exclusively for consumers' personal, non-commercial use and may not be used for any purpose other than to identify prospective properties consumers may be interested in purchasing. Information is deemed reliable but is not guaranteed accurate by the MLS or DMA Real Estate. Data last updated: 2026-04-10T07:40:09.803.
www.dmahouses.com/homes/169912720
Print Image

194 E Harris Rd Imperial, CA 92251

  • Price: $2,900,000
  • Status: Active
  • On Site: 147 Days
  • Updated: 26 min ago
  • MLS #: 25618881IC
0
Beds
0
Baths
0
½ Baths
25
Acres
Neighborhood:
Imperial
County:
Imperial
Area:
Imperial
Property Description
This 75.24 acre land listing is located in the Mesquite Lake Specific Plan Use area. There are four contiguous parcels that comprise this land offering. Parcel APN#040360036 consists of 25 gross acres, and is zoned Mesquite Lake Heavy Industrial (MLI3). The remaining three parcels, APN#040360037,038,039 consist of 50.24 gross acres, and are zoned Mesquite Lake Medium Industrial (MLI2). The land is strategically located next to major transportation arteries, those being Hwy 111, Hwy 86, Keystone Rd, Harris Rd. and Dogwood Rd. The Union Pacific Railroad has service approximately one mile to the west of the subject property. APN#040360036, has a CUP and a five year Sold Waste Permit, and facility renewal permit. There is a farming tenant with a four year lease on the subject property, but the owners have negotiated a buyout provision with the tenant in the event that a sale of the property can be negotiated.
Property Features

ADACompliance YN No Additional Parcel Number True Alley YN No Disclosures As IsConditional Use PermitMineral RightsSoils Report Electric In Street Fence None Financing Cash Gas In Street Homeowner Dues 0 Horse YN No Ingress Egress yes Land Lease Type Fee Listing Terms CashStandard Sale Lot Description AgriculturalFarm Lot Location Rural Occupant Type Tenant Present Use Agricultural Sewer None Site Decription Rural Soil Type 114115 Special Zoning Other Street Lights YN No Topography Flat Water CanalIID Water Well YN No Zoning MLI-3

Listing courtesy of The Dahm Team, Real Estate Co.: 760-337-8600.


© 2026 Imperial County Association of Realtors. All rights reserved. IDX information is provided exclusively for consumers' personal, non-commercial use and may not be used for any purpose other than to identify prospective properties consumers may be interested in purchasing. Information is deemed reliable but is not guaranteed accurate by the MLS or DMA Real Estate. Data last updated: 2026-04-10T07:40:09.803.
 
https://bt-photos.global.ssl.fastly.net/imperial/orig_boomver_1_25618881IC-2.jpg
Logo
DMA Real Estate
502 W. Aten Rd. #101
Imperial CA, 92251